感谢咨询江苏泰工减速机有限公司,紧急发货请联系客服,15052132938(同微信),13861467735(同微信)泰工减速机备有大量的常规型号的减速机箱体和齿轮,可根据客户要求的型号,快速组装,三天内发货。
公司免费提供选型+CAD出图+***新报价表+免费上门测绘服务!同时代理弗兰德减速机,西门子减速机,SEW减速机,均为内部价销售以及进口减速机的维修和国产替代,尺寸一致。
提供非标减速机的设计制造方案。欢迎全国各地的朋友过来指导工作,我公司会热情接待。
需要您目前查询的产品资料请联系技术获取:181-1539-987 同微信号
减速机技术参数请咨询江苏泰工减速机有限公司,【紧急发货请联系客服,15052132938(同微信),13861467735(同微信)400-710-9918】
泰工减速电机具有效率及可靠性高,工作寿命长,维护简便等诸多优点。泰工减速机专业生产减速电机,摆线针轮减速机,行星减速机,电动滚筒,齿轮减速机,硬齿面减速机,摆线减速机,蜗轮减速机。


作用:降低转速,增加转矩。
行业范围:软齿面减速机应用领域非常广泛,各种包装机、传送机等较小功率的器械上使用相当广泛。
使用要求:1) 齿轮圆周速度不大于20m/s;
2) 高速轴转速不大于1500r/min;
3) 工作环境温度为-40~+45℃;
4) 可正反两向运转。
产品卖点:1)承载能力高。主要零部件高速轴材料采用42CrMo;大齿轮由齿圈和轮芯组合而成,齿圈材料采用35SiMn,轮芯材料采用HT200°;机盖、油池由A3钢板焊接而成;机座采用HT200,承载能力比调质滚齿的软齿面和中硬齿面齿轮减速器有大幅度提高。
2)效率高、噪声低、振动小。采用磨齿加工提高了精度等级,齿轮又进行了修缘,每级齿轮的综合效率为0.98,振动和噪声显著降低。
4) 减速器的***大公称传动比达到400,满足了慢速起重机的要求。采用多级数,减少单级速比。可拉开中心距,降低减速器整机高度,满足起重机各机构的要求。
5)可立式、卧式、甚至偏转一定角度安装,方便灵活。
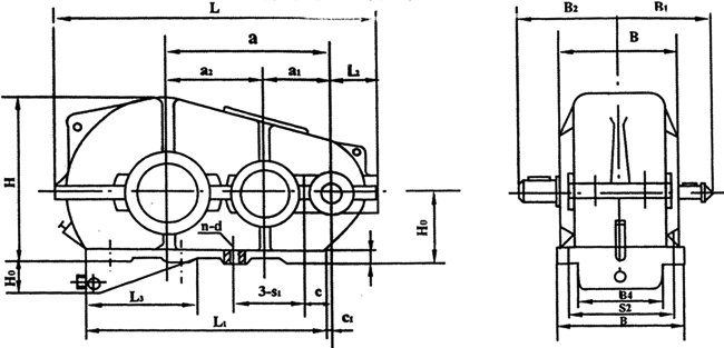
主要规格
本系列减速机按大小、速比、装配形式分如下几种:
1、按主动轴、被动轴中心距分八种型号:JZQ250、JZQ350、JZQ400、JZQ500、JZQ650 、JZQ750、JZQ850、JZQ1000。
2、按速比大小、每种型号又分以下九种速比。(表二)



型号
|
中心距
|
中心高
H0
|
***大外形尺寸
|
轴端尺寸
|
L1
|
L2
|
L3
|
B4
|
H1
|
g
|
安装尺寸
|
***大
质量
kg
|
||||||||||
a
|
a1
|
a2
|
L
|
B
|
H
|
高速轴
B1
|
低速轴
B2
|
C
|
C1
|
孔距
|
孔径
d
|
孔数
n
|
||||||||||
S1
|
S2
|
|||||||||||||||||||||
JZQ250
|
250
|
100
|
150
|
160-00.5
|
540
|
230
|
313
|
200
|
218
|
345
|
101
|
-
|
-
|
-
|
20
|
60
|
28
|
235
|
190
|
17
|
4
|
100
|
JZQ350
|
350
|
150
|
200
|
200-00.5
|
730
|
290
|
440
|
260
|
248
|
470
|
132
|
-
|
-
|
-
|
25
|
100
|
40
|
310
|
250
|
17
|
4
|
200
|
JZQ400
|
400
|
150
|
250
|
250-00.5
|
826
|
310
|
490
|
270
|
303
|
490
|
133
|
-
|
-
|
-
|
25
|
110
|
80
|
370
|
370
|
17
|
4
|
250
|
JZQ500
|
500
|
200
|
300
|
300-00.5
|
986
|
350
|
587
|
330
|
323
|
645
|
148
|
-
|
-
|
-
|
25
|
130
|
80
|
240
|
310
|
17
|
6
|
390
|
JZQ650
|
650
|
250
|
400
|
320-01.5
|
1278
|
470
|
695
|
430
|
428
|
830
|
183
|
495
|
324
|
100
|
30
|
160
|
85
|
215
|
410
|
25
|
8
|
880
|
JZQ750
|
750
|
300
|
450
|
320-01.5
|
1448
|
510
|
740
|
450
|
445
|
1020
|
206
|
620
|
364
|
135
|
35
|
155
|
55
|
275
|
450
|
25
|
8
|
1100
|
JZQ850
|
850
|
350
|
500
|
400-01.5
|
1632
|
580
|
875
|
510
|
523
|
1100
|
236
|
610
|
418
|
105
|
38
|
155
|
75
|
300
|
520
|
32
|
8
|
1500
|
JZQ1000
|
1000
|
400
|
600
|
400-01.5
|
1896
|
660
|
965
|
550
|
603
|
1350
|
257
|
870
|
478
|
200
|
40
|
200
|
100
|
350
|
590
|
32
|
8
|
2230
|






















